
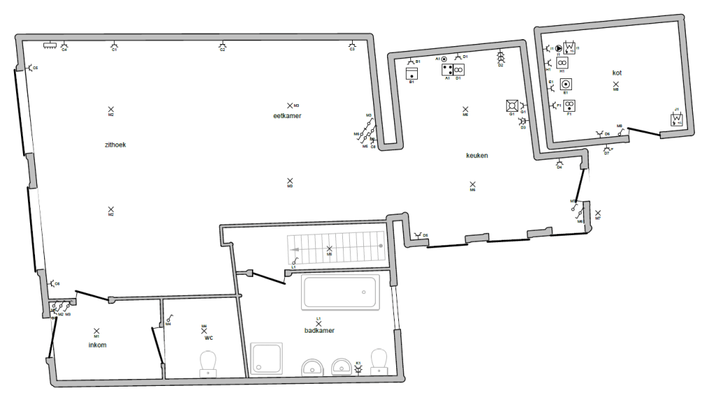
Elektrische schema’s op maat
Een correct en overzichtelijk elektrisch schema is essentieel voor elke installatie. Ik bied professionele elektrische schema’s aan die volledig voldoen aan de geldende normen en regelgeving.
Of het nu gaat om een nieuwbouw, renovatie of aanpassing van een bestaande installatie: ik zorg voor duidelijke en nauwkeurige schema’s die zowel technisch correct als praktisch bruikbaar zijn.
Wat kan je verwachten?
- Eendraadschema’s en situatieschema’s
- Volledig conform de AREI-normen
- Duidelijke en overzichtelijke uitwerking
- Snelle en correcte service
- Ondersteuning bij keuringen
Mijn schema’s zijn geschikt voor particulieren, installateurs en bouwprofessionals die zekerheid willen over hun elektrische installatie.
Heb je een schema nodig voor een keuring of wil je je installatie professioneel laten uittekenen? Neem gerust contact op voor meer informatie of een vrijblijvende offerte.


